


| 参数号 | 参数名称 | 出厂值(代码) | 设定值(代码) |
| 1-00 | 配置模式 | 开环转速 | 闭环转速 |
| 1-01 | 电动机原理 | VVC | [3] 磁通矢量带反馈 |
| 1-02 | 磁通矢量控制反馈源 | 24V编码器 | [2] MCB102 |
| 1-20 | 电动机功率 | 7.5kw | 5.5kw |
| 1-24 | 电动机电流 | 16A | 10.6A |
| 1-25 | 电机转速 | 1440 | 1430 |
| 1-71 | 启动延时 | 0 | 0.2 |
| 1-72 | 启动功能 | 惯性停车 | [6] 起重机械制动释放 |
| 2-23 | 激活制动延时 | 0 | 0.2 |
| 2-24 | 停止延时 | 0 S | 0 S |
| 2-25 | 抱闸释放时间 | 0.2 S | 0.3 S |
| 2-26 | 转矩参考值 | 0 % | 50 % |
| 2-27 | 转矩加减速时间 | 0.2 S | 0.2 S |
| 2-28 | 增益放大倍数 | 1.00 | 1.00 |
| 3-10.0 | 预置参考值1 | 0 % | 10 % |
| 3-10.1 | 预置参考值2 | 0 % | 30 % |
| 3-10.2 | 预置参考值3 | 0 % | 40 % |
| 3-10.3 | 预置参考值4 | 0 % | 70 % |
| 3-41 | 加速时间1 | 1.00 S | |
| 3-42 | 减速时间1 | 1.00 S | |
| 3-51 | 加速时间2 | 2.00 S | |
| 3-52 | 减速时间2 | 2.00 S | |
| 4-30 | 电动机反馈损耗功能 | 跳闸 | 警告 |
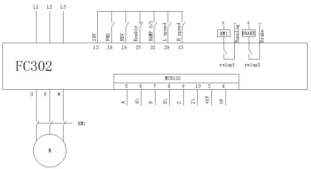
| 5-11 | 19号端子输入 | 反向 | [11] 启动反转 |
| 5-13 | 29号端子输入 | 点动 | [16] 预置参考值0 |
| 5-14 | 32号端子输入 | 无功能 | [34] 加减速位0 |
| 5-15 | 33号端子输入 | 无功能 | [17] 预置参考值1 |
| 5-40.0 | Relay1功能 | 无功能 | [5] 运行 |
| 5-40.1 | Relay2功能 | 无功能 | [32] 机械制动控制 |
| 7-02 | 速度PID比例增益 | 0.015 | 0.05 |
| 17-11 | 分辨率 | 1024 PPR | 1024 PPR |